自清洗過濾器的原理分類
刷式
污水由設備的入水口進入過濾器內,粗濾網先對污水中的體積較大的雜質進行攔截,防止這些雜質進入機體內部后損壞機體內的部件。粗濾后的水流向機體另一端的細濾網,細濾網對水中的雜質及污物進行最后的攔截。因為污垢對濾網的堵塞,使濾網中的水和濾網外的水產生壓力差,當這個壓力差達到壓差開關的設定數值時,電控箱發出清洗、排污信號,控制機體上的排污閥與清掃電機同時打開。電機轉動帶動機體內的不繡鋼刷對濾網上的污垢進行清理,再通過排污口排出污水,完成一次自清洗過程。該過濾器同時安裝有定時控制器,可在一定時間間隔內定時排污。
吸吮式
污水自入水口進入,經過粗、細濾網過濾,然后流向出口。在過濾過程中,細濾網表面逐漸積累水中的雜質。形成過濾雜質層。由于雜質堆積在細濾網的內側,因此在細濾網的內、外兩側就形成了一個壓力差。當壓差達到系統預設值時,自動清洗功能被啟動,此間系統的供水不中斷,排污閥打開, 污水由排污閥排出。此時水力馬達室及集污器內的壓力大幅下降,開始吸污過程:此時同樣一股很強的反沖洗水流向外部,吸嘴上產生一股吸力再加上水流經過水力馬達時,由于液壓活塞壓力下降,帶動集污器繞軸進行旋轉做軸向運動,將整個細濾網內表面完全清冼干凈。該過濾器同時安裝有定時控制器,可在一定時間間隔內定時排污。
電機驅動型吸污式過濾器原理同上,只是集污器由電機驅動。
反沖洗式
污水自入水口進入,由濾芯內側向外側過濾,水中懸浮物雜質被V型端的縫隙孔攔截在濾芯內并浮著在縫隙平面周圍,濾后凈水由濾芯內縫隙中向外流出。當濾芯縫隙孔被懸浮物大量阻塞時,過濾器進出口水端壓差增大,當壓差達到系統預設值時啟動反洗,濾芯在反洗時由于濾芯內部腔體被泄壓閥門導通而接入大氣(表壓為0),使濾芯外側的濾后凈水變為反洗水,在大的壓差作用下迅速由濾芯外側向內側沖刷,由于縫隙是V型的,反洗水從濾芯外側進入內側時流速將大大提高,進而對縫隙形成很大的沖刷清洗作用。這種V型端面尖端向外的高品質濾芯具有優異的流體特性,可使得自動反沖洗過濾器每次自動清洗都是成功的,從而保證了自動反沖洗過濾器長期穩定的工作。在過濾器出口與反沖洗管路間保證至少1.5 bar的壓力差是非常關鍵的,這樣可以保證反洗效率最高,反洗更干凈,因此排污管的輸出管路的長度應盡可能短,且盡量避免有彎道。
產品應用
自清洗過濾器廣泛應用于冶金、化工、石油、造紙、醫藥、食品、采礦、電力、城市給水領域。諸如工業廢水,循環水的過濾,油田回注水,乳化液的再生,廢油過濾處理,冶金行業的連鑄水冷卻系統,高爐冷卻水系統,熱軋用高壓水除磷系統冷卻水過濾,R.O.系統前過濾,巴氏消毒系統,制冷采暖水系統等。是一種先進、高效且易操作的全自動過濾裝置,它優秀的結構設計和自動清潔的功能為用戶帶來了穩定可靠的操作性能,同時也大幅度消減了運行維護費用。
空調冷卻水過濾 綜合水泵房過濾
連鑄機二冷水過濾 連鑄機結晶器冷卻水過濾
高爐爐壁冷卻水過濾
自清洗過濾器的精度推薦
■連鑄機結晶器冷卻水過濾:100-200μm
■連鑄機二冷水過濾:200μm
■高爐爐壁冷卻過濾:200μm
■乳化液過濾:30-150μm
■滴灌應用:130μm
■樞紐灌溉:500μm
■景觀滴灌:100μm
■母液循環水過濾:50μm
實際過濾精度應根據客戶工藝管路要求
目數細度對照表
|
網目數 |
微米(μm) |
網目數 |
微米(μm) |
|
2 |
8000 |
100 |
150 |
|
3 |
6700 |
115 |
125 |
|
4 |
4750 |
120 |
120 |
|
5 |
4000 |
125 |
115 |
|
6 |
3350 |
130 |
113 |
|
7 |
2800 |
140 |
109 |
|
8 |
2360 |
150 |
106 |
|
10 |
1700 |
160 |
96 |
|
12 |
1400 |
170 |
90 |
|
14 |
1180 |
175 |
86 |
|
16 |
1000 |
180 |
80 |
|
18 |
880 |
200 |
75 |
|
20 |
830 |
230 |
62 |
|
24 |
700 |
240 |
61 |
|
28 |
600 |
250 |
58 |
|
30 |
550 |
270 |
53 |
|
32 |
500 |
300 |
48 |
|
35 |
425 |
325 |
45 |
|
40 |
380 |
400 |
38 |
|
42 |
355 |
500 |
25 |
|
45 |
325 |
600 |
23 |
|
48 |
300 |
800 |
18 |
|
50 |
270 |
1000 |
13 |
|
60 |
250 |
1340 |
10 |
|
65 |
230 |
2000 |
6.5 |
|
70 |
212 |
5000 |
2.6 |
|
80 |
180 |
8000 |
1.6 |
|
90 |
160 |
10000 |
1.3 |
經驗公式:
15400=目數(mesh) X微米(μm)
目數,就是孔數,就是每平方英寸上的孔數目。
注:顆粒目數的定義:目數越大,說明物料粒度越細;目數越小,說明物料粒度越大。篩分粒度就是顆粒可以通過篩網的篩孔尺寸,以1英寸(25.4mm)寬度的篩網內的篩孔數表示,因而稱之為目數。
過濾器主要部件材質
■過濾器殼體:碳鋼、304不銹鋼、316L不銹鋼
■排污閥:鑄鋼、不銹鋼、銅、尼龍
■濾網:304不銹鋼、316L不銹鋼
■控制柜:碳鋼噴塑、304不銹鋼、塑料
■清洗刷:304不銹鋼、尼龍
■反洗管:304不銹鋼
■轉軸:碳鋼、304不銹鋼
■密封圈:橡膠EPDM
排污閥主要形式
根據要求選裝
濾網主要形式

楔形絲 復合燒結 沖孔板
特殊定制
我公司可根據用戶要求的尺寸、材質(如:碳綱、不銹鋼)、顏色等特殊要求訂制,亦可現場測繪,替代國產及進口過濾器。
訂貨須知
1.用戶訂貨時請正確提供產品名稱、規格型號、最高工作壓力、工作溫度、過濾精度、材質、連接法蘭標準;
2.電機是否防爆、是否戶外工作;
3.特殊要求另行說明;
4.過濾精度的選擇
一般來講,過濾器的過濾精度選擇高一些,載污量就大一些,而實際上對過濾器來講并非過濾精度越高越好,通常只要滿足工藝要求即可,特別是當水中含油時精度越高越容易糊網.因此,選擇過濾精度時必須綜合考慮,以下參數供選擇楔形絲濾網精度時參考:
(1)反沖洗式自清洗過濾器選用過濾精度為0.2-0.30mm時允許濁液含油量≤10mg/L;選用過濾精度為0.10-0.20mm時允許濁液含油量≤5mg/L;
(2)刷式自清洗過濾器允許濁液中含油量比上列參數再提高50%。
5.前置粗過濾器
由于管道施工及管理上的不完善,在實際操作中常發現管道系統中進入那些未被清除的大雜物,如鋼板邊角料頭、焊條頭、木塊、磚、石塊以及破布等直接進入過濾器,導致過濾器不能正常工作。為此,用戶可在過濾器的入口設置粗過濾器,以濾去管路中的大雜質,保護過濾器的正常運行。
推薦:
|
預過濾精度 |
過濾器精度 |
|
3mm |
<500μm |
|
10mm |
≥500μm |
6. 濾網形式結構
自清洗過濾器默認濾網形式為楔形絲網,濾材質304,結構強度高,使用壽命長。精度默認200微米,此精度足以滿足大多數水的過濾。
電動吸吮掃描式自清洗過濾器產品特點

■適用于水質一般,過濾水量高的場合
■電力驅動旋轉穩定,持久耐用
■根據壓差/定時進行自動清洗
■低運行壓力,可運行于1bar壓力下
■清洗時系統不斷流
■可根據用戶要求提弄耐腐蝕、防爆機型
■特殊設計的逐點掃描裝置保證了清洗效果
HY-XJT-80電動吸吮掃描式自清洗過濾器
技術參數
■單臺處理水量:20-5000 m
3/h
■系統工作壓力:0.1-1.6 MPa
■壓力等級:0.6/1.0MPa/1.6MPa(超出可定制)
■工作介質溫度:0∽65℃
■過濾精度:20∽4000微米
(鉆孔 4000-1000μm 楔形 1500-50μm 復合燒結 800-20μm )
■過濾器的初始壓降(濾器在干凈狀態下):≤0.02MPa
對于過濾精度≤50μm的情況下,所有規格的過濾器壓降增加約30%
■進出口連接方式:法蘭連接 «HG20592-2009鋼制管法蘭»
■最小工作壓力:≥0.1MPa
■控制方式:壓差、時間、手動及PLC
■清洗時間:根據使用情況可調
■反洗耗水量:占過濾水量1∽3%
■工作電壓:380V/50Hz
■清洗方式:吸吮式
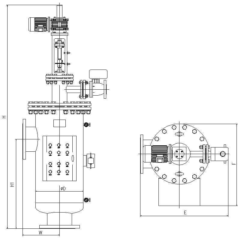
HY-XJT型自清洗過濾器尺寸圖
型號規格
|
型號 |
管徑(mm) |
流量
(m3/h) |
過濾面積
(cm2) |
H
(mm) |
H1
(mm) |
D(mm) |
W
(mm) |
E
(mm) |
F
(mm) |
電機功率
(W) |
重量
(Kg) |
|
HY-XJT-50 |
50 |
20 |
758 |
1465 |
380 |
273 |
220 |
600 |
590 |
0.25 |
80 |
|
HY-XJT-65 |
65 |
28 |
864 |
1510 |
410 |
273 |
220 |
600 |
590 |
0.25 |
90 |
|
HY-XJT-80 |
80 |
50 |
1112 |
1685 |
500 |
325 |
250 |
640 |
640 |
0.25 |
120 |
|
HY-XJT-100 |
100 |
80 |
1682 |
1740 |
500 |
325 |
250 |
640 |
640 |
0.25 |
140 |
|
HY-XJT-125 |
125 |
125 |
2429 |
1760 |
600 |
377 |
290 |
750 |
700 |
0.37 |
160 |
|
HY-XJT-150 |
150 |
150 |
3660 |
1880 |
620 |
377 |
290 |
750 |
700 |
0.37 |
180 |
|
HY-XJT-200 |
200 |
320 |
6283 |
2000 |
800 |
426 |
330 |
840 |
770 |
0.37 |
220 |
|
HY-XJT-250 |
250 |
490 |
8765 |
2200 |
950 |
480 |
380 |
910 |
815 |
0.37 |
310 |
|
HY-XJT-300 |
300 |
710 |
12622 |
2300 |
1050 |
480 |
380 |
920 |
815 |
0.37 |
420 |
|
HY-XJT-350 |
350 |
970 |
17180 |
2480 |
1150 |
630 |
470 |
1100 |
980 |
0.37 |
540 |
|
HY-XJT-400 |
400 |
1260 |
22439 |
2950 |
1250 |
820 |
585 |
1220 |
1180 |
0.55 |
620 |
|
HY-XJT-450 |
450 |
1600 |
28400 |
3225 |
1500 |
920 |
660 |
1300 |
1280 |
0.55 |
730 |
|
HY-XJT-500 |
500 |
1970 |
35062 |
3250 |
1350 |
1020 |
710 |
1350 |
1380 |
0.75 |
950 |
注:尺寸應用于過濾精度低于0.18mm(既濾芯孔徑大于0.18mm),過高精度應選用下一檔尺寸或聯系本公司,本公司對以上內容保留技術變更的權利。
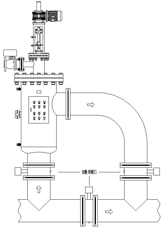
安裝示例圖
注:圖中箭頭為水流方向
多臺并聯可獲得更大流量
新鄉市華豫閥門有限公司是專業的Y型過濾器、旋流除砂器、手搖刷式過濾器、反沖洗過濾器、全自動自清洗過濾器、,全自動反沖洗過濾器、汽水分離器、籃式過濾器等產品的生產企業。華豫閥門以質量求生存,把用戶當上帝,每一道工序有質量檢驗負責人,每個成品有質量檢驗負責人。可靠質量讓客戶放心。完善的售后服務讓客戶省心。用高質量的產品占領市場,用服務保住市場。聯系電話:0373-3547966手機:13938752202 QQ:2248467420 郵箱:xxhylq@163.com網址:http://www.pcq8.com聯系人:李剛國內一流的品質、優質的服務來為您保駕護航!