

一、JT系列全自動過濾器產品介紹
過濾器是水凈化過程中不可缺少的處理設備,用于攔截水中的各種雜質,以凈化水質或保護系統中其他設備的正常工作。普通濾網式過濾器因其結構簡單、過濾效果 好、阻力小而廣泛應用于水源過濾、工業循環水系統等領域,但其缺點是納污量小、易受污物堵塞、清洗工作復雜,必須對設備進行拆卸才能實現對過濾部分的清 洗, 無法監控過濾器的狀態,而且受人為因素影響比較大,使整個系統的自動化程度很低。全自動過濾器可對原水進行過濾并自動對濾芯進行清洗排污,且清洗排污時系 統不間斷供水。該設備與以往的過濾器相比具有自動化程度高,處理量大,可自行清洗排污,并不間斷供水,應用面廣泛等優點。
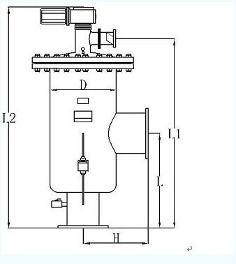
全自動過濾器產品結構型圖

二、全自動過濾器產品使用范圍
全自動過濾器廣泛適用于循環或非循環冷卻水系統、熱交換系統、中央空調系統、集中供暖系統、熱水鍋爐系統等,分別用來保護冷卻設備、熱交換 裝裝置、空調器、鍋爐等。該設備適用行業面廣,包括建筑、化工、電力、冶金、橡膠、造紙、輕紡、煤炭、食品等行業。該設備要求流經過濾器的水溫不可超過 95℃。入水水質要求:入水中懸浮物小于 200mg/L,短時間允許懸浮物達到 660mg/L。 若水質達不到要求,需在過濾器入水口前加預處理。
三、全自動過濾器產品功能及特點
1、產品功能:全自動過濾器具有對原水進行過濾并自動對濾芯進行清洗排污的功能,且清洗排污時系統不間斷供水。 全自動過濾器的清洗有兩種方式:自動控制和手動控制。
自動控制:自動控制有定時和壓差兩種方式。在過濾時間定時器上設定過濾時間,當過濾時間到,啟動排污,排污時間由排污時間定時器設定;同時控制系統實時將系統壓差與用戶設定的壓差相比較,當系統壓差達到設定壓差時,過濾器也進 行
清洗排污,排污時間由排污時間定時器設定。排污時間到,停止清洗,系統恢復至其初始狀態,為下一個過濾工序作好備。
手動控制:手動控制是系統調試、系統工作狀態檢測,系統故障排除和按需清洗排污的最佳手段。:將操作面板上的“手動/自動”選擇開關撥到手動位置,分別進行手動排污和手動清洗。 用戶可根據需要選擇兩種控制方式,具體操作見后面的
操作部分。
2、全自動過濾器產品特點
1) 過濾精度默認為 100 微米,且從 100 至 3000 微米可選,過濾面積大,納污量高, 用戶可根據實際工況定制。
2)清洗方式簡單,且清洗循環電子監控,可實現自動清洗排污。。全自動過濾器控制系統中的各參數均可調節。
3)設有電機過載保護,可有效保護電機。
4)具有在清洗排污時不間斷供水、無需旁路的特點,且清洗時間短,排污耗水量少,不超過總流量的 1%。
5)模塊式結構,維修性強,安裝拆卸簡便易行。
6)與用戶管線的連接方式為法蘭連接,法蘭采用國標法蘭,通用性強。
四、全自動過濾器產品型號說明

型號示例:DN500 JT型全自動過濾器,公稱壓力為 1.6MPa,表示為:XHZL-JT 500-1.6
五、全自動過濾器產品結構說明
結構見圖 1,采用機電一體化設計。全自動過濾器由驅動機構、(包括壓差開關))、控制管路
主管組件、濾芯組件、清洗機構、連接法蘭等主要零部件組成。電控器、控制管路、清洗電機和電動排污閥構成過濾器的控制部分,用于實現自動清洗排污過程。控制管路由壓差開關、管接頭、黃銅管等附件組成。 過濾器常規產品使用不
銹鋼轉刷,也可根據不同的使用條件(水溫、水質),選用其它材質的轉刷。
六、全自動過濾器技術性能參數
XHHB-JT型全自動自清洗過濾器尺寸數據表

| 型號 |
進出口 (mm) |
L (mm) |
L1 (mm) |
L2 (mm) |
H (mm) |
D (mm) |
排污口 (mm) |
流量 (m3/h) |
重量 (Kg) |
| XHHB-JT | 80 | 500 | 1040 | 1270 | 317 | 273 | 40 | 50 | 148 |
| XHHB-JT | 100 | 520 | 1040 | 1270 | 317 | 273 | 40 | 80 | 151 |
| XHHB-JT | 125 | 540 | 1090 | 1320 | 342 | 325 | 40 | 105 | 255 |
| XHHB-JT | 150 | 560 | 1090 | 1320 | 342 | 325 | 40 | 150 | 260 |
| XHHB-JT | 200 | 460 | 1100 | 1330 | 354 | 378 | 50 | 320 | 315 |
| XHHB-JT | 250 | 700 | 1340 | 1570 | 463 | 426 | 50 | 450 | 445 |
| XHHB-JT | 300 | 800 | 1490 | 1720 | 565 | 530 | 50 | 600 | 495 |
| XHHB-JT | 350 | 900 | 1640 | 1870 | 665 | 630 | 50 | 850 | 570 |
| XHHB-JT | 400 | 1000 | 1790 | 2020 | 720 | 760 | 80 | 1200 | 645 |
|
備注:此數據僅供參考,以實物為準,如有更改,恕不另行通知 |
|||||||||
型號:HY-JT型
進出水口徑:DN80-1000
流量:2000 m3/h
設備承壓:1.6MPa
腔體材質:碳鋼(Q235)
腔體防腐處理:防銹底漆
精濾網形式:304不銹鋼
過濾精度:200um(默認)
減速機:1臺
電機轉速:1330r/min(浙江新菱)
減速機功率:≧0.37Kw(杭州譽球)
減速比:1:100
電動排污閥:鑄鋼DN50-200球閥
電動排污閥數量:1臺
壓差控制器:1套
清洗機構材質:全304材質
密封圈:橡膠
電源:380V 50Hz
控制方式:自動時間控制
自動壓差控制
手動控制
安裝方式:立式安裝
全自動過濾器功能描述
1.控制方式:壓差、定時、手動、PLC接口(可實現遠程控制)
2.功能特點:電機過載保護,故障自動報警,可調節全不銹鋼轉刷,鍥型網,全流量電動排污球閥,德力西電氣。
3.質保1年,24小時服務保證客戶生產。
七、全自動過濾器使用注意事項
該設備在出廠前已調試完畢,用戶在使用時直接運行即可。當設備各運行參數不能 滿足用戶要求時,用戶可根據實際工況調定各參數,并相應選用手動控制、自動控制方 式進行工作。首次運行時,應按以下步驟進行:
— 檢查過濾器是否處于正常工作狀態:
¾ 察看過濾器各連接處是否牢固。
¾ 察看過濾器電控箱部分應是干燥的。
¾ 接通電源,“正常工作”指示燈亮,此時表示過濾器電控部分處于正常工作狀態,設 備可投入試運行。
注:插上電源時應注意保持手的干燥,同時在過濾器工作過程中應保持其電控器部分干燥,不可有水進入電控器內部。
八、全自動過濾器安裝運輸
1、 電源安裝: 請按銘牌提示電壓、功率選擇電源接口,選擇1.5mm2或以上的電線接入電控柜底部的電源進線端子上,如圖 3 所示。

2、全自動過濾器安裝及安裝注意事項:
1) 機體上的箭頭方向為水流方向,過濾器應按此方向安裝,即:系統中水流方向應與箭頭方向一致,不得接反。
2) 水力控制閥出口應安裝排污管,連接方式為法蘭連接,排污管長度不能超過 15米,且不應有向上的坡角,以免產生背壓。
3) 過濾器安裝方式,見下圖 但應注意水流方向不可弄錯,安裝時應盡量使水力控 制閥處于水平位置或向下的位置,以保證排污徹底。

6) 在有可能發生回流的地方,應在過濾器出口安裝止回閥。
7) 在動力系統中,過濾器應安裝在泵與設備之間,越靠近設備越好,若泵與設 備之間的壓力超過過濾器的極限壓力,則應將過濾器安裝于泵之前,并且盡量靠 近泵。
8) 全自動過濾器電控器安裝
¾ 電控器出廠時按過濾器默認安裝位置固定,如用戶實際安裝位置與默認不同 時,可通過拆下固定電控箱支架的四條安裝螺栓,調整到電控箱支架及電控箱的 正確方位后,再將四條螺栓用螺母固定即可。
9)合理選擇安裝環境,注意防水、防雨、防潮。
10) 產品出廠前已調試完畢,用戶不可隨意拆卸或調試電控器。
九、全自動過濾器使用方法
全自動過濾器的清洗排污過程有手動、自動控制兩種方式。操作面板示意圖如圖 8 所示,使用方法如下。

一) 全自動過濾器手動控制:
將“手動/自動”選擇開關旋轉至手動位置,見圖 8,根據需要分別進行手動排污和手動清洗,具體操作見后面的操作部分,選擇開關旋轉至自動位置,進入自動狀態。手動控制狀態是檢查電機和水力控制閥能否正 常工作的手段,如果在手動控制狀態不能正常排污自動控制狀態也不會正常工作。
(二)全自動過濾器自動控制: 將“手動/自動”選擇開關旋轉至自動位置(“壓差/定時”開關在“定時”位置),首先設定過濾時間和排污時間定時器。過濾時間以小時為單位,最大到 999 小時,出廠值為120h(5天);排污時間以秒為單位,最大時間60秒,出廠值40s(秒)。接通電源,用選擇開關進入自動狀態,首先進行過濾,過濾時間 定時器開始計時,同時壓差開關也將實際壓差與設定壓差進行比較,如果設定的過濾時間到了,而壓差沒有到,機器也打開排污閥進行清洗排污,過濾時間停止計 時,排污時間開始計時;當排污時間到,關閉排污閥,停止清洗排污,排污時間停止計時,過濾時間開始計時,進入下一個循環;如果設定的過濾時間沒到,而壓差 到了,機器打開排污閥進行清洗排污,過濾時間停止計時,排污時間開始計時;當排污時間到,關閉排污閥,停止清洗排污,排污時間停止計時,過濾時間開始計 時,如此循環往復。將“手動/自動”選擇開關旋轉至自動位置(“壓差/定時”開關在“壓差”位置)接通電源,用選擇開關進入自動狀態,首先進行過濾,此時 過濾時間計時器不計時,壓差值達到設定值后開始清洗排污,排污時間到達
設定值后結束,進入下一個過濾周期,如此循環往復。
(三)全自動過濾器扳手控制:系統提供了定時/壓差控制、壓差控制、手動控制三套有效的控制方案,互為補充確保系統安全。當出現極端情況如電器故障排污閥不能電動打開,就可以使用專用扳手從排污閥電動頭處手動打開,清洗電機同樣可以用扳手手動控制。
十、全自動過濾器壓差指示儀
壓差指示儀在出廠時已經調整好設定值,為 1.0Bar。在壓差指示儀的低壓連接端上側有一個調整壓差值的調節盤,順時針撥動調節盤時,壓差設定值下降。反之,則上升。
壓差指示儀管線選擇十分重要,一班要選用銅管,帶有過濾裝置,閥門,如果選用低劣管線會造成管線堵塞,壓差信號失調,系統無法停止排污,當壓差指示儀需要更換時不得不停止生產等。
全自動過濾器電機,電動機構參照相應說明書進行操作維護。
十一、全自動過濾器電器原理圖

十二、全自動過濾器濾芯的選擇:鍥型網基本上可以終身使用,其特殊的梯形不銹鋼絲形成了濾芯內部縫隙小,外部大的結構,介質從濾芯內向外流動,出水更利,不易阻塞。同時這種結構也更有利于需要反沖洗的設備反沖洗。
鍥型網可以選擇全不銹鋼清洗刷子,而復合網由于其材質所限只能選用尼龍刷子。不銹鋼刷子長度可調節,使用時間更長,適用多種特殊環境,如過濾介質比較粘稠。要根據需要選擇網刷。
十三、全自動過濾器室內型和戶外型
(1) 全自動過濾器室內室外型主要驅別在電器防護等級上
IP(INGRESS PROTECTION)防護等級系統是由IEC(INTERNATIONAL ELECTROTECHNICAL
COMMISSION)所起草。將電器依其防塵防濕氣之特性加以分級。這里所指的外物含工具,人的手指等均不可接觸到電器內之帶電部分,以免觸電。IP防 護等級是由兩個數字所組成,第1個數字表示燈具離塵、防止外物侵入的等級,第2個數字表示燈具防濕氣、防水侵入的密閉程度,數字越大表示其防護等級越高。
兩個標示數字所表示的防護等級如表一及表二所示:
表一:數字 防護范圍 說明
0 無防護 對外界的人或物無特殊的防護
1 防止直徑大于50mm的固體外物侵入 防止人體(如手掌)因意外而接觸到電器內部的零件,防止較大尺寸(直徑大于50mm)的外物侵入
2 防止直徑大于12mm的固體外物侵入 防止人的手指接觸到電器內部的零件,防止中等尺寸(直徑大于12.5mm)的外物侵入
3 防止大于直徑2.5mm的固體外物侵入 防止直徑或厚度大于2.5mm的工具、電線及類似的小型外物侵入而接觸到電器內部的零件
4 防止大于直徑1.0mm的固體外物侵入 防止直徑或厚度大于1.0mm的工具、電線及類似的小型外物侵入而接觸到電器內部的零件
5 防止外物及灰塵 完全防止外物侵入,雖不能完全防止灰塵侵入,但灰塵的侵入量不會影響電器的正常運作
6 防止外物及灰塵 完全防止外物及灰塵侵入
表二:第二個標示特性號碼(數字)所指的防護程度 數字 防護范圍 說明
0 無防護 對水或濕氣無特殊的防護
1 防止水滴侵入 垂直落下的水滴(如凝結水)不會對電器造成損壞
2 傾斜15度時,仍可防止水滴侵入 當電器由垂直傾斜至15度時,滴水不會對電器造成損壞
3 防止噴灑的水侵入 防雨或防止與垂直的夾角小于60度的方向所噴灑的水侵入電器而造成損壞
4 防止飛濺的水侵入 防止各個方向飛濺而來的水侵入電器而造成損壞
5 防止噴射的水侵入 防止來自各個方向飛由噴嘴射出的水侵入電器而造成損壞
6 防止大浪侵入 裝設于甲板上的電器,可防止因大浪的侵襲而造成的損壞
7 防止浸水時水的侵入 電器浸在水中一定時間或水壓在一定的標準以下,可確保不因浸水而造成損壞
8 防止沉沒時水的侵入 電器無限期沉沒在指定的水壓下,可確保不因浸水而造成損壞
戶外型全自動過濾器電器防護等級一班要達到IP65級別
(2)全自動過濾器室內型和戶外型電器對比:
控制器對比:戶外型控制器防護等級應達到IP65級別,采用防水電纜,密封格蘭,必要情況下應添加防雨罩,防水建筑等。
新鄉市華豫閥門有限公司是專業的Y型過濾器、旋流除砂器、手搖刷式過濾器、反沖洗過濾器、全自動自清洗過濾器、, 全自動反<沖洗過濾器、汽水分離器、籃式過濾器等產品的生產企業。華豫閥門以質量求生存,把用戶當上帝,每一道工序有質量檢驗負責人,每個成品有質量檢驗負責人。可靠質量讓客戶放心。完善的售后服務讓客戶省心。用高質量的產品占領市場,用服務保住市場,國內一流的品質、優質的服務來為您保駕護航!
聯系人:李剛經理
座機:0373-3547966
手機:13938752202
QQ:86527577 2248467420
網站推薦:
http://www.xxhyvalve.com
http://www.pcq8.com







服務承諾書
新鄉市新華環保設備有限公司視質量信譽為生命,始終在“用心創造、市場立業” 的經營理念下,以滿足顧客的需求為我們的最終目標為此我們特向您做出如下承諾:
1. 產品質量保證期:我公司生產的系列全自動自清洗過濾器質量保證期為設備交付并開始正常運行之日起12 個月。
2. 向貴方提供的水處理設備主要部件保證為國內、外公司原裝產品或新華專利產品,材料全新,質量優良,是經最終檢驗合格產品。
3. 我公司保證所交付的技術資料齊備、正確、清晰,完全能滿足安裝并達到甲方技術要求。
4. 在定貨合同鑒定生效后,合同的標的物即可按合同規定時間運送至對方指定地點,并負責免費指導現場安裝調試以及操作人員培訓工作。
5. 向您提供12個月的產品免費維修、更換服務(不含易耗件),并給予您終身的技術支持。對于產品的易耗部件(轉刷和不銹鋼濾網)我公司保證長期以成本價提供。
6. 收到您的意見和要求后,我公司保證在8 小時內給予書面答復,如果甲方需要,24 小時內派有經驗的工程技術人員到業主現場進行分析并指導維修。搶修:在質保期內(12 個月),水處理設備一旦發生故障,華豫售后服務工程師在24 小時內立即趕赴現場進行故障排除及模塊更換。即使保修期過后,華豫售后服務工程師也會立即趕赴現場進行搶修設備,修理完畢后在由雙方協商前提下只收取配件費。
官網推薦:
Copyright ? 2010-2019 新鄉市華豫濾器有限公司版權所有
豫ICP備10014951號-5
豫公網安備 41071102000484號
聲明:版權歸華豫濾器所有 本網站版面及內容未經書面授權禁止轉載與鏡像